Courtesy of Kristy Tillapaugh of Century 21 Masters

106 oakwood Road, House for sale in Maple Ridge (Edmonton) Edmonton , Alberta , T6P 0A2

 MLS® # E4476349

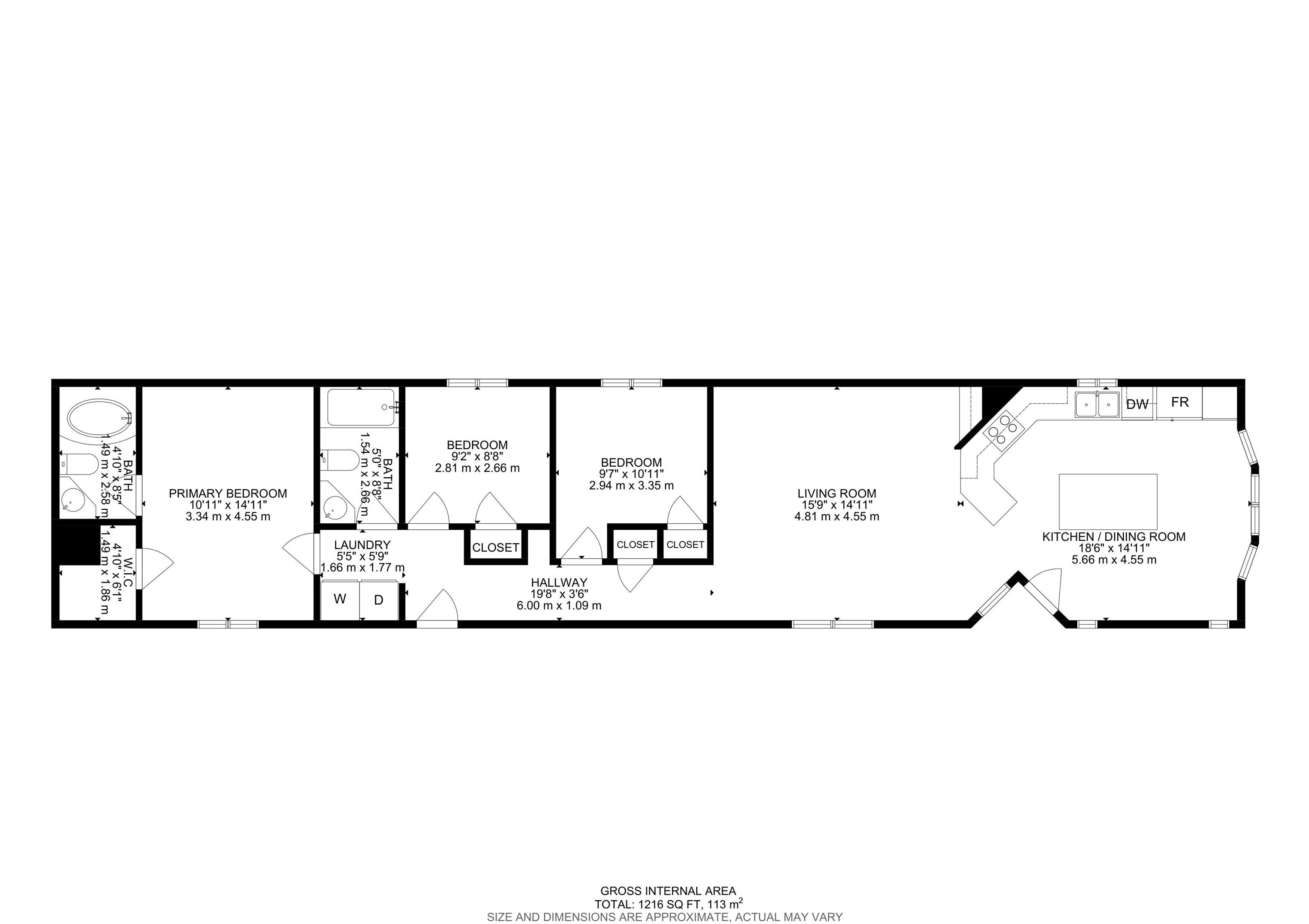
3 bedrooms

2 bathrooms

1,205 sqft

Sign up to View

Days on Market

On Street Parking Deck No Smoking Home Parking-Visitor

Welcome to Maple Ridge! This bright and spacious 3 bedroom, 2 bathroom home features vaulted ceilings and a functional open layout. The large kitchen offers a movable island with tons of counterspace and storage, perfect for entertaining and everyday living. The primary bedroom includes a 5-piece ensuite, and walk in closet creating a comfortable private retreat. There is 2 more bedrooms great for kids or a home office; and with 2 separate entrances this home provides added flexibility for different needs....

Read More

Essential Information

  • MLS® #
    E4476349
  • Year Built
    2007
  • Property Type
    Residential
  • Property Style
    Bungalow
  • MLS® #
    E4476349
  • Year Built
    2007
  • Property Type
    Residential
  • Property Style
    Bungalow
  • MLS® #
    E4476349
  • Year Built
    2007
  • Property Type
    Residential
  • Property Style
    Bungalow

Community Information

  • Area
    Edmonton
  • Neighbourhood/Community
    Maple Ridge (Edmonton)
  • Postal Code
    T6P 0A2
  • Area
    Edmonton
  • Neighbourhood/Community
    Maple Ridge (Edmonton)
  • Postal Code
    T6P 0A2
  • Area
    Edmonton
  • Neighbourhood/Community
    Maple Ridge (Edmonton)
  • Postal Code
    T6P 0A2

Services & Amenities

  • Amenities
    On Street Parking
    Deck
    No Smoking Home
    Parking-Visitor
  • Parking
    2 Outdoor Stalls
  • Amenities
    On Street Parking, Deck, No Smoking Home, Parking-Visitor
  • Parking
    2 Outdoor Stalls
  • Amenities
    On Street Parking
    Deck
    No Smoking Home
    Parking-Visitor
  • Parking
    2 Outdoor Stalls

Interior

  • Goods Included
    Dishwasher-Built-In
    Dryer
    Refrigerator
    Storage Shed
    Stove-Electric
    Washer
    Window Coverings
  • Heating Type
    Forced Air-1
    Natural Gas
  • Basement
    16'0
  • Basement Development
    80'0
  • Goods Included
    Dishwasher-Built-In, Dryer, Refrigerator, Storage Shed, Stove-Electric, Washer, Window Coverings
  • Heating Type
    Forced Air-1, Natural Gas
  • Basement
    16'0
  • Basement Development
    80'0
  • Goods Included
    Dishwasher-Built-In
    Dryer
    Refrigerator
    Storage Shed
    Stove-Electric
    Washer
    Window Coverings
  • Heating Type
    Forced Air-1
    Natural Gas
  • Basement
    16'0
  • Basement Development
    80'0

Exterior

  • Lot/Exterior Features
    Vinyl
  • Foundation
    Piling
  • Lot/Exterior Features
    Vinyl
  • Foundation
    Piling
  • Lot/Exterior Features
    Vinyl
  • Foundation
    Piling

Additional Details

  • Property Class
    Land Lease Community
  • Last Updated
    3/3/2026 20:52
  • Property Class
    Land Lease Community
  • Last Updated
    3/3/2026 20:52
  • Property Class
    Land Lease Community
  • Last Updated
    3/3/2026 20:52

$117,900

106 oakwood Road

Schedule Tour
Contact Agent

$537/month
Est. Monthly Payment
$
$
%
Learn More

Mortgage values are calculated by Redman Technologies Inc based on values provided in the REALTOR® Association of Edmonton listing data feed.