Courtesy of Coby Dumond of MaxWell Devonshire Realty

17834 73A Street, House for sale in Crystallina Nera West Edmonton , Alberta , T5Z 0S9

 MLS® # E4476967

4 bedrooms

4 bathrooms

1,697 sqft

Sign up to View

Days on Market

On Street Parking Air Conditioner Ceiling 9 ft. Closet Organizers Deck Detectors Smoke Hot Water Tankless Insulation-Upgraded No Smoking Home Vinyl Windows

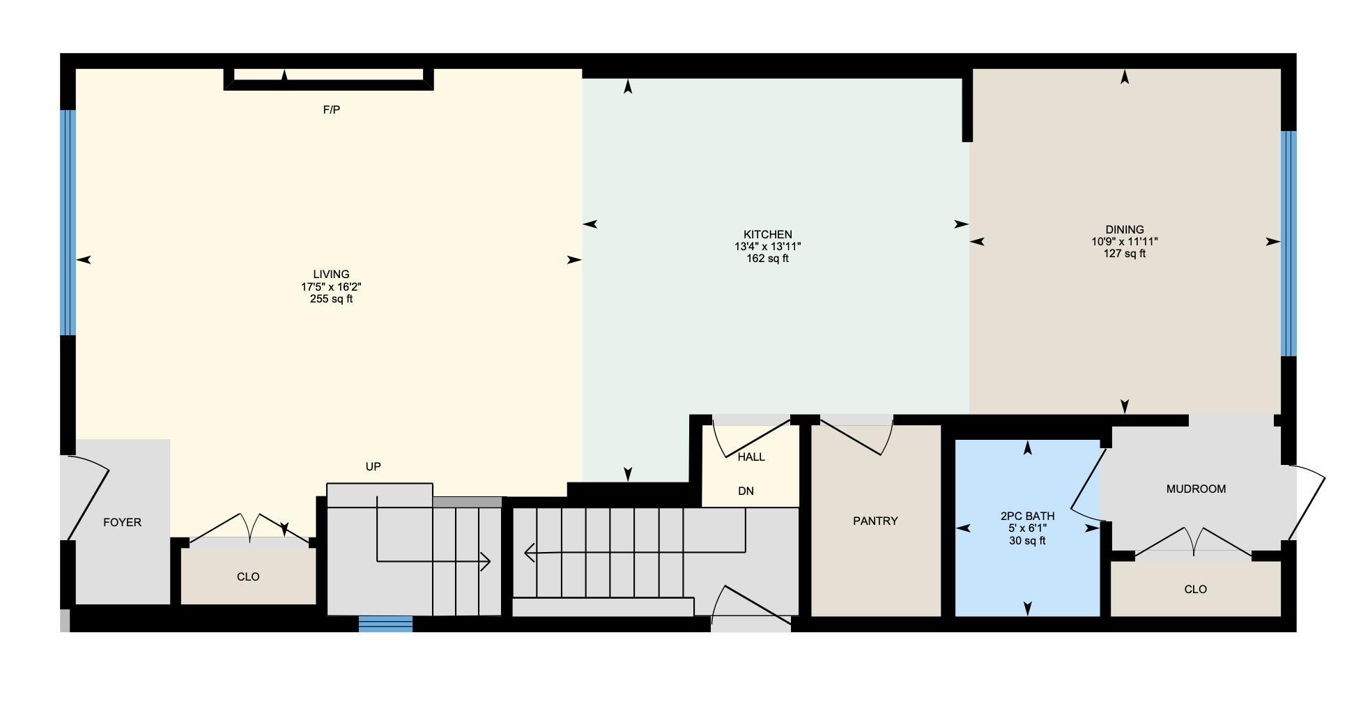
ORIGINAL OWNERS OFFERING A TURNKEY CUSTOM COVENTRY BUILT 2 STORY C/W LEGAL SUITE AND RARE TRIPLE CAR GARAGE! This Home Seriously Needs NOTHING! Boasting a Beautiful Open Concept Floor Plan Featuring Vinyl Plank Flooring Throughout, Stainless Steel Appliances, Upgraded Fixtures and Lighting, a Brick Feature Wall With Electric Fire Place, a Custom 11' Island, Quartz Tops With Matching Backsplash. The Upper Level Has 2 Spacious Bedrooms Sharing a 4 Pce Bath, Same Level Laundry and an Expansive Primary Bedroom ...

Read More

Essential Information

  • MLS® #
    E4476967
  • Year Built
    2021
  • Property Type
    Residential
  • Property Style
    2 and Half Storey
  • MLS® #
    E4476967
  • Year Built
    2021
  • Property Type
    Residential
  • Property Style
    2 and Half Storey
  • MLS® #
    E4476967
  • Year Built
    2021
  • Property Type
    Residential
  • Property Style
    2 and Half Storey

Community Information

  • Area
    Edmonton
  • Neighbourhood/Community
    Crystallina Nera West
  • Postal Code
    T5Z 0S9
  • Area
    Edmonton
  • Neighbourhood/Community
    Crystallina Nera West
  • Postal Code
    T5Z 0S9
  • Area
    Edmonton
  • Neighbourhood/Community
    Crystallina Nera West
  • Postal Code
    T5Z 0S9

Services & Amenities

  • Amenities
    On Street Parking
    Air Conditioner
    Ceiling 9 ft.
    Closet Organizers
    Deck
    Detectors Smoke
    Hot Water Tankless
    Insulation-Upgraded
    No Smoking Home
    Vinyl Windows
  • Amenities
    On Street Parking, Air Conditioner, Ceiling 9 ft., Closet Organizers, Deck, Detectors Smoke, Hot Water Tankless, Insulation-Upgraded, No Smoking Home, Vinyl Windows
  • Amenities
    On Street Parking
    Air Conditioner
    Ceiling 9 ft.
    Closet Organizers
    Deck
    Detectors Smoke
    Hot Water Tankless
    Insulation-Upgraded
    No Smoking Home
    Vinyl Windows

Interior

  • Floor Finish
    Carpet
    Ceramic Tile
    Vinyl Plank
  • Goods Included
    Dishwasher-Built-In
    Garage Control
    Garage Opener
    Oven-Microwave
    Wine/Beverage Cooler
    Dryer-Two
    Refrigerators-Two
    Stoves-Two
    Washers-Two
    Garage Heater
  • Heating Type
    Forced Air-2
    Natural Gas
  • Fireplace Fuel
    Electric
  • Basement
    Full
  • Basement Development
    Fully Finished
  • Floor Finish
    Carpet, Ceramic Tile, Vinyl Plank
  • Goods Included
    Dishwasher-Built-In, Garage Control, Garage Opener, Oven-Microwave, Wine/Beverage Cooler, Dryer-Two, Refrigerators-Two, Stoves-Two, Washers-Two, Garage Heater
  • Heating Type
    Forced Air-2, Natural Gas
  • Fireplace Fuel
    Electric
  • Basement
    Full
  • Basement Development
    Fully Finished
  • Floor Finish
    Carpet
    Ceramic Tile
    Vinyl Plank
  • Goods Included
    Dishwasher-Built-In
    Garage Control
    Garage Opener
    Oven-Microwave
    Wine/Beverage Cooler
    Dryer-Two
    Refrigerators-Two
    Stoves-Two
    Washers-Two
    Garage Heater
  • Heating Type
    Forced Air-2
    Natural Gas
  • Fireplace Fuel
    Electric
  • Basement
    Full
  • Basement Development
    Fully Finished

Exterior

  • Lot/Exterior Features
    Back Lane
    Corner Lot
    Fenced
    Fruit Trees/Shrubs
    Landscaped
    Paved Lane
    Playground Nearby
    Public Transportation
    Shopping Nearby
  • Roof
    Asphalt Shingles
  • Foundation
    Concrete Perimeter
  • Lot/Exterior Features
    Back Lane, Corner Lot, Fenced, Fruit Trees/Shrubs, Landscaped, Paved Lane, Playground Nearby, Public Transportation, Shopping Nearby
  • Roof
    Asphalt Shingles
  • Foundation
    Concrete Perimeter
  • Lot/Exterior Features
    Back Lane
    Corner Lot
    Fenced
    Fruit Trees/Shrubs
    Landscaped
    Paved Lane
    Playground Nearby
    Public Transportation
    Shopping Nearby
  • Roof
    Asphalt Shingles
  • Foundation
    Concrete Perimeter

Additional Details

  • Property Class
    Single Family
  • Site Influences
    Back Lane
    Corner Lot
    Fenced
    Fruit Trees/Shrubs
    Landscaped
    Paved Lane
    Playground Nearby
    Public Transportation
    Shopping Nearby
  • Road Access
    Paved
  • Last Updated
    3/3/2026 22:18
  • Property Class
    Single Family
  • Site Influences
    Back Lane, Corner Lot, Fenced, Fruit Trees/Shrubs, Landscaped, Paved Lane, Playground Nearby, Public Transportation, Shopping Nearby
  • Road Access
    Paved
  • Last Updated
    3/3/2026 22:18
  • Property Class
    Single Family
  • Site Influences
    Back Lane
    Corner Lot
    Fenced
    Fruit Trees/Shrubs
    Landscaped
    Paved Lane
    Playground Nearby
    Public Transportation
    Shopping Nearby
  • Road Access
    Paved
  • Last Updated
    3/3/2026 22:18

$619,900

17834 73A Street

Schedule Tour
Contact Agent

$2823/month
Est. Monthly Payment
$
$
%
Learn More

Mortgage values are calculated by Redman Technologies Inc based on values provided in the REALTOR® Association of Edmonton listing data feed.